Loading…
409 Clearbrook Drive
Map
Photos
Property Location
409 Clearbrook Drive
Jefferson City, TN 37760
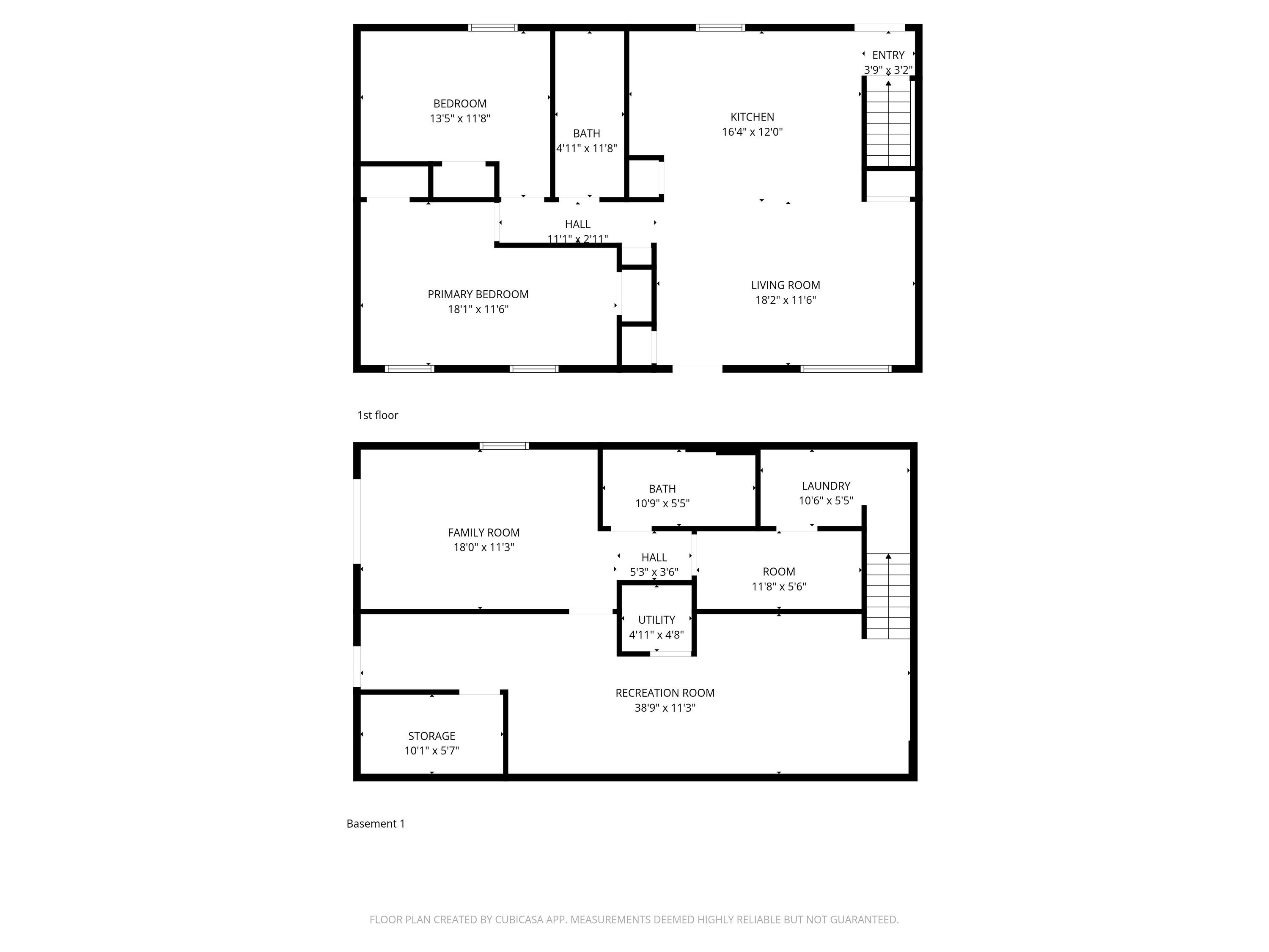
1,942
SqFt
3
Beds
2
Baths